Gemeindehaus Limbach
Bauvorhaben
Wir legen das ganze Projekt in Gottes Hände und blicken erwartungsvoll auf das, was ER uns damit schenken will.
Spendenaufruf nächster Bauabschnitt Nebengebäude Limbach
Nachdem wir uns nun schon seit geraumer Zeit an den neu gestalteten Räumen unseres Nebengebäudes erfreuen können, soll es nun endlich weiter gehen. Im nächsten Bauabschnitt ist die Sanierung der Räume im vorderen Bereich zur Straße, die Dämmung und Gestaltung der Fassade und die Anbindung des Pfarrhauses an die umweltfreundliche Pelletheizung des Nebengebäudes geplant. Dankbar sind wir für die erfolgte Baugenehmigung durch das Regionalkirchenamt und das Bauamt sowie die Unterstützung durch den Kirchenvorstand unseres Kirchspieles. Natürlich ist wie bei jeder Finanzierung auch bei diesem Bauabschnitt durch unsere Gemeinde ein Eigenanteil aufzubringen. Deshalb möchten wir an dieser Stelle bitten, euch nach euren Möglichkeiten an dem Eigenbeitrag unserer Gemeinde zu beteiligen. Eure Spende mit dem Betreff „Spende Nebengebäude“ kann auf das bekannte Konto unserer Gemeinde überwiesen werden oder auch in den besonderen Spendensammelkasten in unserer Kirche eingelegt werden. Wir danken euch im Voraus für jede Spende, mit der ihr uns bei der Erhaltung und neuen Nutzung des Nebengebäudes unterstützt. Gott segne jeden freudigen Geber.
Eure Kirchgemeindevertretung Limbach
Bauausschuss "Nebengebäude" informiert:
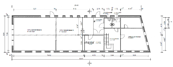
Neue Informationen zu unserem „Treffpunkt für Generationen“
Liebe Gemeindeglieder der Kirchgemeinde Limbach,
„Schon ein kleines Lied kann viel Dunkel erhellen.“
Diesen Satz von Franz von Assisi möchte ich einem neuen Bericht zum Sachstand unserer Bauarbeiten am „Treffpunkt für Generationen“ voranstellen. Denn nun besteht die Möglichkeit, dass unsere Musikgruppen den lang ersehnten Probenraum nutzen können und mit ihrer Musik das Dunkel erhellen. Am 23. Februar konnten einige Vertreter der verschiedenen Gruppen den Raum in Beschlag nehmen. Sicher ein schöner Moment für alle Beteiligten.
Wieder konnten weitere Bauabschnitte fertiggestellt werden. Um das gesamte Gebäude konnte die Außenfassade fertiggestellt werden, so dass ein markantes Limbacher Ensemble in neuem Glanz erstrahlen kann.
Ebenso erfolgte die Erstellung einer behindertengerechten Zuwegung um die Kirche herum zum Eingang. An dieser Stelle einen herzlichen Dank an Alle die an diesem Projekt beteiligt waren. Besonders hier gab es einige Probleme hinsichtlich ökologischen Bauens und Fragen des Denkmal- und Naturschutzes zu klären, da die Zuwegung ja über „ehemaliges“ Friedhofsgelände verläuft. Dieses Projekt wurde aus verschiedenen Quellen gefördert und musste in einem bestimmten Zeitrahmen umgesetzt werden, was uns auf die sprichwörtlich letzte Minute gelang. Besonderer Dank gilt an dieser Stelle Frieder Weinhold, der die Förderung von staatlicher Seite her organisierte und immer wieder anschob. Weiterhin Dank dem Verein „Gemeindeleben Limbach e.V.“ für die finanzielle Unterstützung des Projektes. Nicht zu vergessen auch ein Danke an unseren Bauplaner Herrn Krause, der ja all die Jahre die verschiedenen Bauabschnitte begleitete. Und natürlich auch einen herzlichen Dank an alle beteiligten Firmen für die geleistete Arbeit.
Und zu guter Letzt erfolgte die Anbindung des Pfarrhauses an die Pelletheizung des Nebengebäudes, so dass eine Heizung für beide Gebäude genutzt werden kann. Der doch schon in die Jahre gekommene Gaskessel im Pfarrhaus kann nun seinem verdienten Ruhestand entgegen sehen .
Nun können wir den letzten Bauabschnitt: Jugendtreff im Kellergeschoss in Angriff nehmen.
Begleiten Sie uns auch weiterhin mit ihren Gebeten und so möglich mit ihren Spenden.
Wir danken unserem HERREN das ER seine segnenden Hände über das Projekt und alle bei den Arbeitseinsätzen beteiligten Helfer und Handwerker gehalten hat.
Ihre Gemeindevertretung & Ihr Bauausschuss
Stand: 03/2024
Ältere Informationen
Neue Informationen zu unserem „Treffpunkt für Generationen“
Liebe Gemeindeglieder der Kirchgemeinde Limbach,
es ist wohl wieder mehr als angezeigt an dieser Stelle vom Sachstand der Baumaßnahmen an unserem Nebengebäude (NGB), welches ja richtigerweise von Anfang an als „Treffpunkt für Generationen“ bezeichnet wurde, zu berichten. Die Arbeiten waren in den letzten Monaten (Jahren) durch eine Pandemie etwas ins Stocken geraten. Doch seit einiger Zeit ist wieder EINIGES im Gange. So wurden die nächsten beiden Bauabschnitte begonnen und perspektivisch eine Heizungstrasse vom NGB zum Pfarrhaus gelegt.
Zu den nächsten Bauabschnitten gehört die Errichtung eines Probenraumes sowie eines Lageraumes für unsere verschiedenen Musikgruppen. Ebenso steht die Gestaltung der gesamten Außenfassade des NGB auf dem Programm. In vielen Detailfragen zur Ausführung ist hier natürlich auch der Denkmalschutz zu beachten. Die verlegte Heizungstrasse soll unser Pfarrhaus heizungstechnisch mit der Pelletheizung im Nebengebäude verbinden. Somit wird eine Beheizung beider Häuser mit einer Heizungsanlage realisiert.
Leider sind auch wir von den globalen wirtschaftlichen Entwicklungen mit unserem Bauvorhaben betroffen, so dass sich die anfangs geplanten Ausgaben um 10 – 15% erhöhen dürften. Bitte begleiten Sie uns auch weiterhin mit Ihrem Gebet und Ihrer Spende für die Umsetzung der begonnenen Maßnahmen. Soviel ist schon geworden und wird von uns Allen rege genutzt. Dafür dürfen wir unserem HERRN dankbar sein. Und wir dürfen uns freuen, wenn wir diese schönen Räume erleben dürfen.
An dieser Stelle noch einmal recht herzlichen Dank an alle fleißigen Helfer, die in so manchen Arbeitseinsätzen mitgewirkt haben, sei es als „Bauleiter“, „Organisator“, „Profi- Tief- und Hochbauer“, „Maurer“, „Handlanger“ oder vom „Team Catering“. Es waren immer gesegnete Einsatzstunden, die zum Gelingen unseres Projektes beitragen werden.
Ihre Gemeindevertretung & Ihr Bauausschuss
Stand: 03/2023
Neue Informationen zu unserem „Treffpunkt für Generationen“
Liebe Gemeindeglieder der Kirchgemeinde Limbach,
an dieser Stelle möchten wir Sie aktuell zum Sachstand „Treffpunkt für Generationen“ oder immer wieder auch Nebengebäude genanntes Bauvorhaben, informieren.
Am 21.06.2021 trafen sich in unserem neuen Gemeindesaal Vertreter der Gemeindevertretung der Kirchgemeinde, der Bauausschuss sowie unser Bauplaner Herr Krause und der Baupfleger des LKA Herr Estel um das weitere Vorgehen zu den nächsten Bauabschnitten zu beraten.
In den letzten Monaten ist unser Projekt „Nebengebäude“ nicht nur coronabedingt leider etwas ins Stocken geraten. Vor dem Lockdown im Herbst 2020 hatten wir noch einmal einen Spendenaufruf über eine Summe von 10.000 € gestartet. Das Ziel wurde im gesteckten Zeitrahmen dank vieler Spender erreicht und übererfüllt. Es gingen bis zum avisierten Termin über 11.000,00 € an Spenden ein. Vielen Dank an alle Spender denen der Fortgang unseres Projektes am Herzen liegt. Diese Spenden werden selbstverständlich und vollumfänglich unserem Projekt zugutekommen.
Leider geht es terminlich nicht so voran, wie wir uns das Alle wünschen. Dies hat gleich mehrere Gründe. Zum einen waren einige Vororttermine mit notwendigerweise einzubeziehenden Behörden (z.B. Denkmalschutzbehörde, Baubehörde) coronabedingt nicht ohne zeitliche Verschiebungen zu organisieren. Auch haben sich bei diesen Vorortterminen Diskrepanzen im Baugenehmigungsverfahren des ersten Bauabschnittes ergeben, die nun bereinigt werden müssen.
So ist z.B. die Nutzung des neuen Gemeindesaales zwingend auf 99 Personen begrenzt. Ab 100 Personen hätten hierzu ganz andere Auflagen (z.B. brandschutztechnisch) erfüllt werden müssen, was die Kosten für diesen ersten Bauabschnitt noch erhöht hätte. Aufgrund dieser Regelung werden die Bauanträge noch einmal überarbeitet und den Gegebenheiten angepasst. Dies wird zeitnah geschehen. Parallel dazu werden die Anträge für die nächsten Bauabschnitte (Probenraum; Jugendtreff; Außenfassade) vorbereitet und bei den entsprechenden Stellen (untere Baubehörde; kirchliches Bauamt) beantragt.
Auch erhielten wir für die neuen Bauabschnitte einige denkmalschutzrechtlichen Auflagen, die wir umsetzen müssen. So z.B. ist die Innendämmung in diesem Bereich mit Lehmbaustoffen zu realisieren und die vorhandenen Kastenfenster wärmeschutztechnisch zu ertüchtigen. D.h. dass die äußeren Fenster im Gebäude verbleiben müssen (Aufarbeitung der Fenster) und nur im Innenbereich auf den Stand der Technik (neue Fensterflügel) gebracht werden.
Diese behördlichen Probleme kosten uns leider Zeit. Sie sind aber notwendig, um auch in Zukunft jeder Überprüfung standhalten zu können. Aufgrund des Mehraufwandes unsererseits und der Bearbeitungszeit durch die Behörden wird es wohl erst auf Ende des Jahres 2021 zu den entsprechenden Ausschreibungen kommen. Mit einer Umsetzung der Bauarbeiten für den Probenraum ist witterungsbedingt im Frühjahr 2022 und mit dem Beginn der Gestaltung der Außenfassade im Mai 2022 zu rechnen. Im Anschluss daran soll es dann mit dem Jugendtreff im Erdgeschoss weitergehen.
Gesamt betrachtet sicher keine glücklich machenden Umstände, doch wollen wir trotz allem optimistisch in die Zukunft blicken und die Arbeiten weiter angehen. Jeder der die Räumlichkeiten nutzt, ist sicher glücklich über den Umstand was wir mit GOTTES Hilfe bisher umsetzen konnten. Hätten wir uns damals nicht gemeinsam „auf den Weg“ gemacht, wer weiß: das Gebäude wäre sicher schon eingefallen. Viele Gespräche beweisen uns immer wieder, dass bei aller Verzögerung dieses Projekt der Gemeinde am Herzen liegt. Bleiben Sie auch weiterhin ausdauernd.
Seien Sie Alle gesegnet und behütet
Gemeindevertretung Limbach
Bauausschuss Limbach
und alle bei der Organisation und Umsetzung Beteiligten
Stand: 06/2021
Bauabschnitt 2 Update Februar 2021
Wir bauen weiter!
Vor einigen Monaten starteten wir einen Spendenaufruf zur Realisierung des 2. Bauabschnittes.
Mit Beginn des Neuen Jahres können wir mitteilen, dass das Ziel 10.000 € Eigenmittel zu generieren nicht nur erreicht wurde, sondern übertroffen wurde. Es sind 11.500 € als Spenden eingegangen. Herzlichen Dank an Alle die dieses Vorhaben unterstützt haben.
Die denkmalschutzrechtliche Genehmigung wurde aktuell noch beantragt und liegt uns hoffentlich bald vor, so dass wir nun in die Beauftragung von Firmen gehen können. Wir hoffen im Frühjahr mit den Arbeiten beginnen zu können.
Wir bitten um weitere Unterstützung sowohl finanziell als auch praktisch zu anstehenden Arbeitseinsätzen. Bitte begleitet unser Projekt auch weiterhin im Gebet und erbittet GOTTES SEGEN für dieses Vorhaben.
Euer Bauausschussteam
Stand: 02/2021
Wie Ihr vielleicht wisst, haben wir einen weiteren größeren Bauantrag für die Fortsetzung der Baumaßnahmen am Nebengebäude beantragt. Die Situation war nicht ganz einfach, einerseits muss das Gebäude äußerlich dauerhaft gegen Witterungseinflüsse geschützt werden, das heißt wir müssen die Verkleidung der Fassaden fertigstellen, um Bauschäden zu verhindern und einen vollständigen Wärmeschutz zu erreichen. Andererseits möchten wir einen eigenen Raum für die Band schaffen, damit in Zukunft die Probe ohne aufwändige Vorbereitungen stattfinden kann und andere Veranstaltungen im Gemeindesaal nicht eingeschränkt werden.
Da mittelfristig keine Fördermittel in Aussicht stehen und unsere Eigenmittel bei weitem nicht reichen, haben wir zunächst einen kirchlichen Bauantrag mit Anfrage auf Zuschuss der Landeskirche gestellt. Die Gesamtbaukosten für diesen Abschnitt belaufen sich auf 110.000€. Danke an dieser Stelle für alle Unterstützer und Beter.
Jetzt haben wir die Genehmigung bekommen. Halleluja! Das heißt wir dürfen bauen und bekommen 50% Zuschuss der Landeskirche! Nun beginnt die Planung des Ganzen. In unserer Kalkulation sind natürlich auch wieder einige Arbeitseinsätze eingerechnet, damit die Gesamtkosten begrenzt werden konnten.
Um das Projekt umsetzen zu können, brauchen wir natürlich auch die Unterstützung der Gemeinde und jedes Einzelnen. Zum einen ganz praktisch, bei den Arbeitseinsätzen, hier wäre es schön wenn die Last auf vielen Schultern getragen wird. Und zum anderen, rufen wir auch jetzt wieder zum Gebet und zu Spenden für die Baumaßnahme auf. Wir freuen uns auf einen weiteren großen Bauabschnitt mit euch und erbitten Gottes Segen für das Vorhaben.
Euer Bauausschussteam.
Stand: 04/2020
Liebe Gemeinde,
es wird wohl mehr als Zeit, dass wieder etwas Neues vom Nebengebäude hier erscheint. Bei einem letzten aktuellen Stand aus dem Jahr 2016 wohl mehr als nötig.
Nach umfangreichen Planungen unseres Bauplaners Herrn Krause, der fleißigen Arbeit so mancher Gewerke und der tatkräftigen Unterstützung unermüdlicher Helfer aus unserer Kirchgemeinde die in vielen Stunden der Eigenleistung zum Gelingen des Projektes beitrugen, konnte der erste Bauabschnitt nebst Installation sanitärer Einrichtungen schon vor einiger Zeit abgeschlossen werden. Am 03.12.2017 konnte der neue Gemeindesaal (zu diesem Zeitpunkt noch ohne sanitäre Einrichtungen) im Rahmen einer Feierstunde im Anschluss an den Gottesdienst eingeweiht werden. Die Räumlichkeiten werden rege durch die kirchliche und politische Gemeinde und darüber hinaus genutzt und können nach vorheriger Absprache auch für Feierlichkeiten angemietet werden.
Nun soll der nächste Bauabschnitt in Angriff genommen werden. Die Planungen stehen und die Genehmigungen sind „am Laufen“. Es ist vorgesehen, den vorderen Bereich im 1.OG als Probenraum zu gestalten und die Außenfassade zu erneuern. Wie das insbesondere in Bezug auf die Außenfassade im Detail aussieht, kann an dieser Stelle noch nicht beantwortet werden. Hier hat auch das Amt für Denkmalschutz noch ein gewichtiges Wort mitzureden. Aber auch bei diesem Bauabschnitt wollen wir ohne Aufnahme von Krediten ans Werk gehen. Dies wurde zu Beginn durch die Mehrheit der Gemeinde bekundet. An dieser Vorgabe wollen wir auch weiterhin festhalten.
Alles andere legen wir in GOTTES Hand. Bitte begleiten Sie auch weiterhin das Projekt mit Ihrem Gebet und wenn möglich mit Ihrer Spende. Nach wie vor besteht die Möglichkeit unserem Spenderkreis beizutreten. Gerne können Sie uns diesbezüglich ansprechen. Aber auch Einzelspenden sind jederzeit möglich.
Ihr Kirchenvorstand & Ihr Bauausschuss
Stand: 03/2020
Liebe Gemeinde,
nun ist es soweit: Es gibt gute Nachrichten zum Nebengebäude!
Wir möchten zunächst einmal zusammenfassen, was bisher passiert ist:
In den Jahren 2009 - 2014 wurden grundlegende Arbeiten am Gebäude, wie die Erneuerung der Dacheindeckung, tlw. Erneuerung der Nordwand mit Fenstern und Entkernung des Obergeschosses, durchgeführt. Ende 2014 wurde ein Konzept für den Ausbau als "Begegnungszentrum für Generationen" erstellt. In diesem Zusammenhang wurden Nutzungsanalysen, Kostenschätzungen und eine Vorentwurfsplanung erstellt. Das Bauplanungsbüro Krause aus Plauen wurde mit der Entwurfs- und Genehmigungsplanung beauftragt. Aufgrund des hohen Gesamtumfangs, wurde die Baumaßnahme in 3 Bauabschnitte unterteilt. Es wurde die Anwendbarkeit von mehr als 100 Förderprogrammen geprüft. Der LEADER - Antrag zum "demografiegerechten Ausbau von Dorfkernen" durfte dann endlich im ersten Aufruf im Januar 2016 gestellt werden.

Trotz der Menge der Anträge und der komplexen Nachforderungen, wurde der 1. Bauabschnitt unseres Projektes dann am 06.04.2016 als einziges Vorhaben im gesamten Vogtlandkreis bewilligt!

Das Projekt "Nebengebäude Limbach" wird über das LEADER Förderprogramm mit 100.000,- €uro gefördert.
Wir danken Gott für seine Gebetserhörung! Somit sehen wir positiv in die Zukunft und hoffen jetzt noch auf den Zuschuss der Landeskirche, damit wir noch in diesem Jahr mit dem 1. Bauabschnitt beginnen können.
Wir möchten Sie auch gerade jetzt darum bitten, weiterhin so treu und reichlich zu spenden. Jederzeit können Sie unserem Spenderkreis beitreten. Der aktuelle Spendenstand kann auf der Schautafel im Kirchenkaffeebereich unserer Kirche entnommen werden. Jede regelmäßig gespendete Summe hilft.
Ihr Kirchenvorstand & Ihr Bauausschuss
Stand: 10/2016